in costruzione
Nuovi ospedali rurali per mamma e bambino (in costruzione)
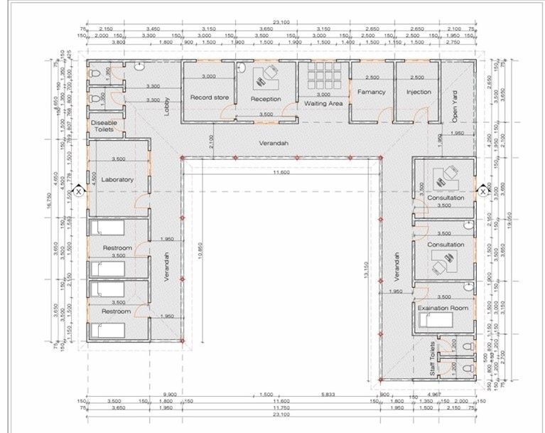
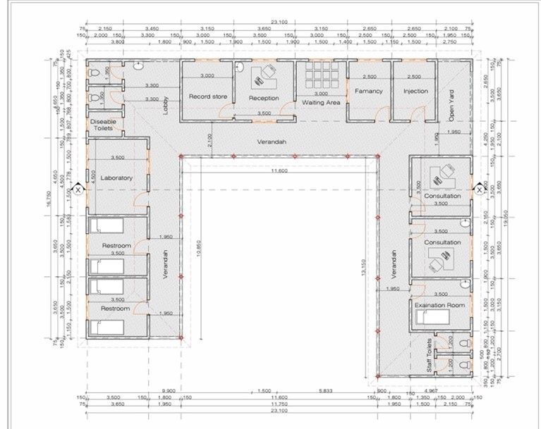
Nel nordovest della Tanzania, la Rosa Rossa sta costruendo il primo di 4 nuovi ospedali rurali, per dare un parto assistito a decine di migliaia di mamme e bambini delle zone piu' remote. Questo e' nella foto e' il primo, ovvero l’ "Ospedale Rurale Santi Anna e Gioacchino – Rosa Rossa". Si tratta di un tipico ospedale rurale tanzaniano a pianta a C, di 300 metri quadrati piu’ cortile.
I beneficiari principali del progetto sono le madri e i bambini del distretto di Kirando, regione di Rukwa. Infatti questo ospedale e’ progettato per assistere fino a 500 bambini e 500 madri all'anno, offrendo cure mediche perinatali, postnatali e infantili. Si stima che esso aiuterà fino a 5.000 mamme e bambini nei soli primi 10 anni di attività.
L’ospedale e’ situate nella regione di Rukwa, una regione che ha circa 1 milione e mezzo di abitanti, e una superficie poco inferiore a quella del Belgio. E ’ una delle piu’ povere del Paese, situata com’e’ al confine con la Repubblica Democratica del Congo. La regione ha anche uno dei più alti tassi di crescita della popolazione in Tanzania (4.4%) e uno dei più alti tassi di natalità in casa (69.9%) invece che in ospedale.
dati tecnici del nuovo ospedale:
500
mamme e bambini assistiti ogni anno
4
posti letto
1+1
1 Pronto Soccorso e 1 Laboratorio di Analisi
2
Studi per Medici
perché credere in noi
"in costruzione
...
"in costruzione."
Dr. ...











